Casa di corte in vendita

San Dorligo Della Valle, Località S. Giuseppe della Chiusa - San Giuseppe Della Chiusa
€ 149.000
230 Mq 230 Mq
2 bagni 2 bagni

Casa di corte in vendita

San Dorligo Della Valle, Località S. Giuseppe della Chiusa - San Giuseppe Della Chiusa

Descrizione annuncio

SAN GIUSEPPE DELLA CHIUSA - Nel cuore del caratteristico centro storico di San Giuseppe della Chiusa, nel comune di San Dorligo della Valle – Dolina, proponiamo due case indipendenti con corte interna.

Le due unità, attualmente distinte, possono essere vendute separatamente oppure accorpate in un'unica proprietà, offrendo massima flessibilità in base alle esigenze dell'acquirente.

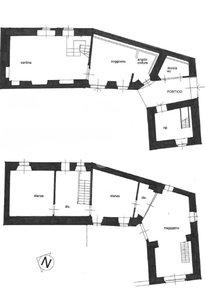
PRIMA CASA – ca. 125 mq su due livelli
Composta da ampi ambienti da redistribuire secondo le proprie esigenze. Spazi generosi e ben distribuiti, ottima base per una ristrutturazione moderna.

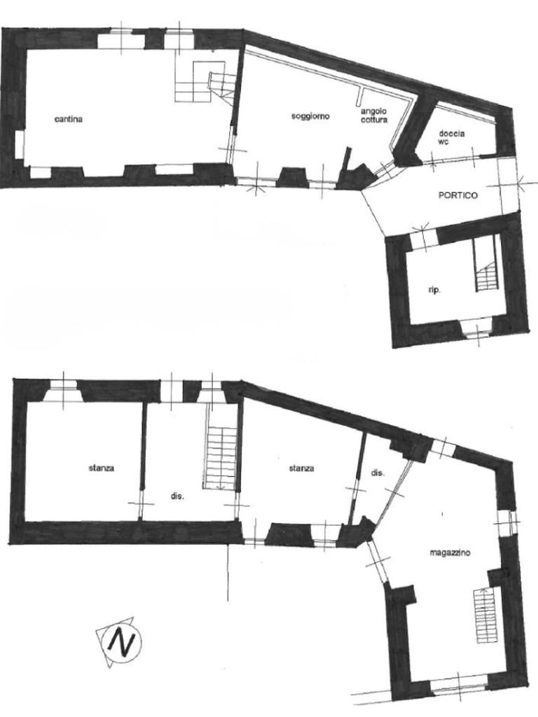
SECONDA CASA – ca. 105 mq disposta su tre livelli: da lato strada si accede al piano terra, tramite scala interna si arriva alla zona giorno e salendo la soluzione ci offre sottotetto con comode altezze e accesso al balcone con vista aperta e scorcio mare. Ottima luminosità e potenziale architettonico interessante.

Condizioni interne: entrambe le abitazioni sono interamente da ristrutturare, rappresentando così una perfetta occasione per chi desidera personalizzare ogni dettaglio della propria casa o realizzare una soluzione bifamiliare.

Spazio esterno: corte interna privata, ideale per momenti di relax all’aperto o come spazio deposito.

Posizione: zona tranquilla e servita, con il fascino autentico del borgo, a pochi minuti da Trieste.

Ideale per: due nuclei familiari, genitori e figli oppure per una famiglia con più componenti.

Facilità di parcheggio nelle immediate vicinanze.

IL PREZZO DI VENDITA S'INTENDE PER ENTRAMBE LE UNITA' IMMOBILIARI.

Alcune immagini presenti sono oggetto di Intelligenza Artificiale.

Mostra tutto

Nelle vicinanze

Trasporto pubblico Trasporto pubblico
Trieste Aquilinia
Trieste Aquilinia
2,5 Km
str. prov. di Prebenico 154/a
str. prov. di Prebenico 154/a
290 m
str. prov. di Prebenico (bivio S. Giuseppe)
str. prov. di Prebenico (bivio S. Giuseppe)
640 m
Zona Industriale
2,7 Km
Ricariche auto elettriche Ricariche auto elettriche
EnelX Conad Trieste
1,8 Km
Eneldrive Basovizza
2,1 Km
Scuole Scuole
Scuole
230 m
Scuola elementare statale con lingua d'insegnamento slovana Ivan Trinko-Zamejski
240 m
Asilo Nido Comunale Bosco Magico
1,2 Km
Scuola Secondaria di Primo Grado Cirillo e Metodio
1,2 Km
Scuola elementare Fran Milčinski
1,2 Km
Farmacia Farmacia
Farmacia
1,4 Km
Farmacia Altura
1,7 Km
Farmacia Melara
1,9 Km
Val Rosandra
2,0 Km
Farmacia al Carso
2,3 Km
Ospedali Ospedali
Ospedale di Cattinara
1,3 Km
Supermercati Supermercati
Supermercato Zazzeron
1,2 Km
Crai di Cattinara
1,6 Km
Supermercati
1,7 Km
Conad Supermercato
1,8 Km
Maxì Supermercati
1,9 Km
Negozi Negozi
Negozi
1,3 Km
Viezzoli
1,4 Km
Il pane quotidiano
1,9 Km
Abbigliamento / Konfekcije Sancin Carolina
2,0 Km
Pasticceria e cioccolateria artigianale Ota
2,0 Km
Bar Bar
Terza Generazione
2,0 Km
Dancing Paradiso
2,3 Km
Bar Nildo
2,7 Km
Ristoranti Ristoranti
Taverna Sturman
90 m
Pizzeria da Modesto
1,1 Km
Trattoria Da Gelmo
1,2 Km
Osmizza al Corridore
1,4 Km
Trattoria alla Scaletta
1,4 Km
Mostra tutto

Caratteristiche

Rif.:
61109045
Totale piani:
2
Terrazzi:
1
Camere da letto:
3
Arredamento:
Assente
Condizionamento:
Assente
Mostra tutto
Prezzo Prezzo
€ 149.000
Rata mutuo Rata mutuo
€ 687 / mese
Spese annue Spese annue
€ 0
Proponi il tuo prezzoProponi il tuo prezzo

Classe Energetica

G
G
G
G
G
G
G
G
G
Anno di costruzione:
1900
Riscaldamento:
Autonomo
Tipo impianto:
A stufa
Tipo alimentazione:
Altro

Ti interessa visionare l'immobile?

Fissa un appuntamento  Fissa un appuntamento

Richiedi informazioni

* Questi campi sono obbligatori

Calcola il tuo mutuo

Semplice e senza impegno
Anticipo

( % )
Mutuo

( % )

pochi semplici passi

inserisci i tuoi dati
Questionario completato
Grazie per aver richiesto un appuntamento senza impegno con un nostro Consulente del Credito e Assicurativo.

Hai inserito correttamente tutti i dati necessari e a breve riceverai una e-mail con un link da convalidare per inviare i tuoi dati.
Affiliato
Borgo & Dolina Snc
Loc. Domio, 132 34018 San Dorligo Della Valle (TS)

Il nostro staff


  • Valentina Chiriaco
    Coordinatrice

  • Carolina Mondo
    Affiliata
Loc. Domio, 132 34018 San Dorligo Della Valle (TS)
Zona: San Dorligo della Valle-Borgo San Sergio Altura-Cattinara
Mostra su mappa
Affiliato
Borgo & Dolina Snc
Loc. Domio, 132 34018 San Dorligo Della Valle (TS)

2025 Tecnocasa Franchising S.p.A. - P. IVA 08365160152 - Via Monte Bianco 60/A 20089 Rozzano (MI). Ogni agenzia ha un proprio titolare ed è autonoma. Privacy policy | Policy utilizzo | Cookie policy